+420 776 517 981 | info@auprol.cz
Typ:
Prodej bez aukce
Číslo:
382516
Kraj:
Hlavní město Praha
Město/obec:
Praha 4 - Modřany
Okres:
Hlavní město Praha
Katastrální území:
Modřany
List vlastnictví:
7043
GPS:
50.0070878N, 14.4301625E
Prohlídka:
22.11.2025 ve 13:00 hodin (nutno se nahlásit)
Pokud účast nepotvrdí žádný zájemce, prohlídka se konat nebude
.
Nemovitost není zatížena žádnými dluhy, exekucemi nebo jiným omezením
.
Kup teď – Cena, za kterou můžete nemovitost získat ihned:
9.000.000,-Kč
Inzertní cena "MUN"– Prodej dle uvážení majitele:
7.500.000,-Kč
Druh prodeje - MUN s RS, CM, aukce :
Metoda uzavřené nabídky (s RS)

Prodej bytu 3+1/L Vitošská P4 Modřany, 80 m2

Číslo položky: 382516
Prodejní cena 7 500 000 Kč

Popis předmětu prodeje

Inzerce   

PRODEJ „MUN“ – nejde o aukci ani dražbu. Jedná se o standardní prodej s Rezervační smlouvou. Zaujala vás cena „MUN“ 7.500.000,- Kč nebo chcete využít cenu „Kup teď“? Kontaktujte nás – rádi s Vámi projdeme možnosti. Více informací k prodeji a ceně „Kup teď“ najdete přímo na titulní stránce AUPROL. Financování hypotékou možné. Právní servis zajištěn.

BYT 3+1 / lodžie + sklep, celkem 80 m2, OV, Vitošská 3412/5, Praha 4 - Modřany, 6. p ze 7. p. panel. domu, výtah, oblíbená lokalita, parkování, MHD 1 min, k dispozici ihned

DŮVOD PRODEJE - byt je nabízen k prodeji z osobních důvodů, majitel plánuje pořízení jiné nemovitosti a prostředky z prodeje využije i k jejímu financování.

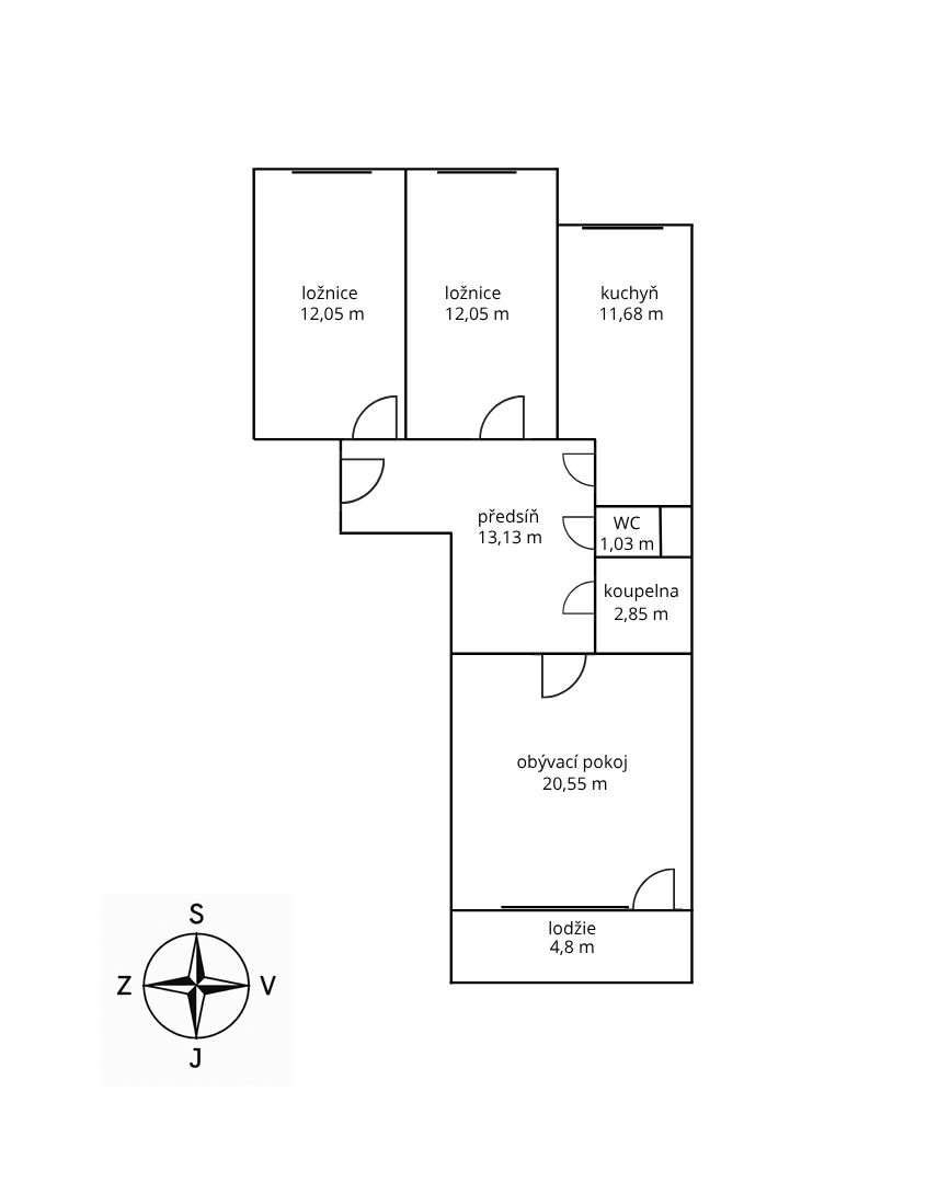
DISPOZICE předsíň 13,13 m2, obývák 20,55 m2, lodžie 4,8 m2, ložnice 12,05 m2, 2. pokoj 12,05 m2, kuchyň 11,68 m2, koupelna 2,85 m2, WC 1,03 m2, sklep 2 m2

INTERIÉR hezký, světlý a prostorný byt, původní stav před reko, úpravou možno zbudovat 4+kk viz foto, orientace SJ, kuchyň - linka, el. trouba a sporák, lednice, skříň, stůl a židle, obývák ústí na lodžii s výhledem do zeleně / Modřanské rokle, 2 pokoje se skříní a postelemi, velká chodba s možností vybudování šatny / komory, původní jádro, koupelna s vanou, odd. toaleta, plastová okna, závěsy, lustry, podlahy lino a koberce, ústř. top., vodovod, plyn není zaveden, v suterénu sklep, dohoda na příp. zanechání části vybavení ( např. lednice )

DŮMpanelák z roku 1994, nová zateplená střecha, nové el. rozvody, nový velký výtah pro 14 osob, 2 x automat. vchod. dveře, lité podlahy, kočárkárna / kolárna v přízemí, sklepy v suterénu, bezbarier. přístup, kamerový systém, SVJ hospodaří dobře, má dostatečné finanční rezervy a neustále vylepšuje technický stav a vzhled domu, v domě je čisto a klid, PENB - C, internet, satelit, před domem dostatek místa pro parkování

REKO ( byt a dům ) - byt je v původním, ale dobře udržovaném stavu a je připraven k celkové rekonstrukci - příležitost upravit si bydlení podle vlastních potřeb nebo vhodně investovat. Dům byl postaven o 10 let později než okolní panelové domy, proto u něj dosud neproběhlo vnější zateplení. Na konci listopadu 2025 je plánovaná schůze SVJ, kde se bude rozhodovat o způsobu zateplení a také o možné úpravě a zvětšení lodžií !!!

POPL 6961 Kč/měs. vč. 3028 Kč do FO + el. dle spotřeby, uspokojivé náklady vzhledem k velikosti bytu

Vídeo na YouTube

VÝHODY / DOPRAVA / OKOLÍ – MHD 1 min bus/tram, centrum / metro 20 min, klidná část města, stabilní a funkční SVJ, 6. p. - dostatek kumul. tepla a krásný výhled, parkování bez modrých zón, 3+1 s možností úpravy na 4+kk, světlý byt orientace SJ, investiční potenciál, plná občanská vybavenost, ZŠ, MŠ, OC Modřany, banky, obchody, restaurace, poliklinika, Modřanská rokle - krajinný celek s údolím / městská divočina, procházky, běh, cyklistika, vyžití pro děti

GPS: 50.0070878N, 14.4301625E

Z KATASTRÁLNÍHO ÚŘADU - Byt 3+1, Vitošská č. p. 3412, LV 7043, pozemek p. č. 4400/328 jehož součástí je stavba č. p. 3410, 3411, 3412, 3413, č. jednotky 3412/72, podíl na spol. část. 76/6055, KÚ Modřany (území Hlavního města Prahy);728616

PROHLÍDKA - 22. 11. 2025 v 13.00 hod. a 6. 12. 2025 v 11.00 hod., pouze po tel. domluvě. Účast je tedy nutno potvrdit. Pro více informací volejte - mob. č. 777 250 201, Vítězslav Matyáš

AUPROL - Pokud není uvedeno jinak, veškeré informace uvedené v nabídce pocházejí přímo od majitele nemovitosti. Zájemcům důrazně doporučujeme, aby se zejména týkal skutečného stavu a aktuálního stavu nemovitosti, a to zejména s ohledem na případnou reklamaci týkající se jejích vlastností. Dle charakteru nemovitosti doporučujeme rovněž shlédnout do územního plánu, kontaktovat stavební úřad, obecní zastupitelstvo, provozovatele sítí nebo jiné příslušné úřady. 

AUPROL s.r.o.
IČ: 24236705
DIČ: CZ24236705
+420 776 517 981 +800 511 012
office@auprol.cz
www.auprol.cz www.aukceprolidi.cz

Hlavní partneři