+420 776 517 981 | info@auprol.cz
Typ:
Prodej bez aukce
Číslo:
382518
Kraj:
Hlavní město Praha
Město/obec:
Praha 4
Okres:
Hlavní město Praha
Katastrální území:
Modřany
List vlastnictví:
4892
GPS:
50.0071244N, 14.4304231E
Prohlídka:
30.1.2026 v 11:00 hodin (nutno se nahlásit)
Pokud účast nepotvrdí žádný zájemce, prohlídka se konat nebude
.
Nemovitost není zatížena žádnými dluhy, exekucemi nebo jiným omezením
.
Kup teď – Cena, za kterou můžete nemovitost získat ihned:
9.500.000,-Kč
Inzertní cena "MUN"– Prodej dle uvážení majitele:
7.990.000,-Kč
Druh prodeje - MUN s RS, CM, aukce :
Metoda uzavřené nabídky (s RS)

Prodej bytu 3+1/L Vitošská P4 Modřany, 80 m2 + GARÁŽ

Číslo položky: 382518
Prodejní cena 7 990 000 Kč

Popis předmětu prodeje

Inzerce   

PRODEJ „MUN“ – nejde o aukci ani dražbu. Jedná se o standardní prodej s Rezervační smlouvou. Zaujala vás cena „MUN“ 7.990.000,- Kč nebo chcete využít cenu „Kup teď“? Kontaktujte nás – rádi s Vámi projdeme možnosti. Více informací k prodeji a ceně „Kup teď“ najdete přímo na titulní stránce AUPROL. Financování hypotékou možné. Právní servis zajištěn.

BYT 3+1 / lodžie + sklep + dvougaráž, byt celkem 80 m2, OV, Vitošská 3413/7, Praha 4 - Modřany, přízemí panel. domu, oblíbená lokalita, parkování, MHD 1 min, k dispozici ihned

DŮVOD PRODEJE majitel byt prodává z osobních důvodů. Po prodeji dopravní firmy, která sídlila v bytě, plánuje pořízení jiné nemovitosti

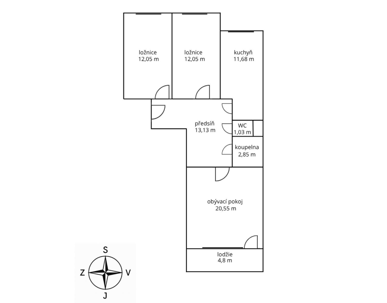
DISPOZICE předsíň 13,13 m2, obývák 20,55 m2, lodžie 4,8 m2, ložnice 12,05 m2, 2. pokoj 12,05 m2, kuchyň 11,68 m2, koupelna 2,85 m2, WC 1,03 m2, sklep 2 m2, možnost dvougaráže cca 50 m2

INTERIÉRhezký, světlý a prostorný byt, po část. rekonstrukci, zděné jádro, koupelna se sprch. koutem, odd. toaleta, nové stoupačky a vodoměry, kuchyň linka - el. trouba a el. sporák, digestoř, obývák ústí na lodžii s bezpečnost. mřížemi, orientace SJ, prostorná chodba s možností vybudování šatny či komory, vestavěné skříně, dále dva samostatné pokoje, plastová okna, stropní světla a lustry, podlahy lino, koberce a dlažba, ústř. top. s měřidly, vodovod, plyn není zaveden, v suterénu sklep, v minulosti sídlo firmy, proto je dobře zabezpečen ( mříže a kamerový systém v domě )

DŮM panelák z roku 1994, nová zateplená střecha, nové el. rozvody, nový velký výtah pro 14 osob, 2 x automat. vchod. dveře, lité podlahy, kočárkárna / kolárna v přízemí, sklepy v suterénu, bezbarier. přístup, kamerový systém, SVJ hospodaří velmi dobře, naspořeno přes 2 mil. Kč a neustále vylepšuje technický stav a vzhled domu, v domě je čisto a klid, PENB - C, internet, satelit, před domem dostatek místa pro parkování, v horizontu cca 1 roku bude realizováno zateplení domu vč. zvětšení a zasklení lodžií

POPL 6638 Kč/měs. + el. dle spotřeby

!!! SUPER PŘÍLEŽITOST / DVOUGARÁŽ U DOMU !!! – k bytu je nabízena možnost koupě prostorné zděné dvougaráže v OV o ploše cca 50 m2, která se nachází pár kroků od domu. Garáž je uzamykatelná, vybavená křídlovými vraty se zabezpečením, elektřina s vlastním elektroměrem a kvalitním osvětlením. Díky své velikosti nabízí pohodlné parkování až pro dva minivany, možnosti dalšího využití ( sklad, dílna apod. ). Cena garáže není pevně stanovena a bude se odvíjet od celkové nabídky za byt a garáž jako celek. Více informací na telefonu ……

VÝHODY / DOPRAVA / OKOLÍ - přízemí = rychlý přístup ven, žádné schody či výtah a snadné stěhování, MHD 1 min bus / tram ( centrum / metro 20 min ), klidné prostředí, stabilní a funkční SVJ, parkování bez modrých zón, světlý byt orientace SJ, plná občanská vybavenost, ZŠ, MŠ, OC Modřany, banky, obchody, restaurace, poliklinika, Modřanská rokle - procházky, běh, cyklistika, vyžití pro děti a zmíněná velká GARÁŽ

GPS: 50.0071244N, 14.4304231E

Z KATASTRÁLNÍHO ÚŘADU - Byt 3+1, Vitošská č. p. 3413, LV 4892, stavba na pozemku p. č. 4400/328, jehož součástí je stavba č. p. 3410, 3411, 3412, 3413, č. jednotky 3413/79, podíl na spol. část. 76/6055, KÚ Modřany (území Hlavního města Prahy); 728616

PROHLÍDKASO 31. 1. 2026 v 11.00 hod., pouze po tel. domluvě. Účast je tedy nutno potvrdit. Pro více informací volejte - mob. č. 777 250 201, Vítězslav Matyáš

AUPROL - Pokud není uvedeno jinak, veškeré informace uvedené v nabídce pocházejí přímo od majitele nemovitosti. Zájemcům důrazně doporučujeme, aby se zejména týkal skutečného stavu a aktuálního stavu nemovitosti, a to zejména s ohledem na případnou reklamaci týkající se jejích vlastností. Dle charakteru nemovitosti doporučujeme rovněž shlédnout do územního plánu, kontaktovat stavební úřad, obecní zastupitelstvo, provozovatele sítí nebo jiné příslušné úřady. 

 

AUPROL s.r.o.
IČ: 24236705
DIČ: CZ24236705
+420 776 517 981 +800 511 012
office@auprol.cz
www.auprol.cz www.aukceprolidi.cz

Hlavní partneři